Se você está pensando em comprar um elevador e quer saber o tamanho do equipamento, você chegou ao lugar certo. Muitas pessoas chegam até mim com dúvidas sobre as dimensões dos elevadores, e nesse texto quero deixar claro quais são essas medidas.
Tanto eu quanto o Rômulo somos Engenheiros Mecânicos especializados em elevadores, e já tivemos a oportunidade de assessorar muitos clientes na compra de elevadores. Por isso preparamos esse material para te ajudar.
Separei esse texto da seguinte maneira:
- Qual o tamanho de um elevador residencial?
- Qual o tamanho de um elevador predial?
- Como definir o tamanho de um elevador no seu projeto
- Tamanho das partes do elevador: cabina, caixa de corrida, poço última altura e portas
- Como preparar a sua obra para receber o elevador?
- É obrigatório fechar a caixa de corrida?
- Quanto custa um elevador?
- Quais os tipos de elevador?
- Como escolher o elevador ideal para o seu projeto
- Quais são os menores elevadores existentes no mercado?
- Empresas fabricantes de elevador
- Principais dicas para comprar um elevador
Se você está com dúvidas em algum desses tópicos, continue a leitura. Vamos lá!
Qual o tamanho de um elevador residencial?
A medida da cabine de um elevador residencial padrão é de 0,90 x 1,20 m. O espaço utilizado pela caixa de corrida é de 1,50 x 1,50. As portas do elevador têm 0,80 x 2,00 m e a profundidade do poço é de 0,50 m.
Esse é o tamanho mais comum para esse tipo de equipamento, apesar de existirem modelos maiores e menores disponíveis no mercado.
O elevador residencial, ou elevador de acessibilidade, é um equipamento que atende imóveis com até 5 paradas, ou 12m de percurso.
Esse tipo de elevador tem uma capacidade de 3 passageiros, por isso suas medidas são menores do que a de um elevador convencional.
Qual o tamanho de um elevador predial?
O elevador convencional para um edifício tem a medida da cabine de 1,10 x 1,40 m e a dimensão interna da caixa de corrida é de 1,80 x 1,80 m. As portas de um elevador predial tem a partir de 0,80 x 2,00 m e a profundidade do poço é de 1,50 m.
Os elevadores convencionais podem ser usados em diversos tamanhos. Estas são as medidas de um equipamento de tração de 8 passageiros, que é o tipo de elevador mais comumente utilizado em edifícios.
Note que existe uma diferença significativa entre o espaço interno da cabina e a área da caixa de corrida. Essa distância é necessária para que haja espaço para acomodar componentes como guias, cabos, portas e contrapeso.
Veja nessa imagem abaixo. Observe os componentes que ficam nas laterais da caixa, junto das paredes, eles utilizam parte do espaço necessário para a instalação do elevador.

Como você viu, os elevadores convencionais utilizam espaço necessário maior para a sua instalação do que os equipamentos residenciais. O motivo é que se tratam de equipamentos mais robustos com velocidade e capacidade bem superiores a um elevador residencial.
Como definir o tamanho de um elevador no seu projeto
Se você viu as dimensões básicas de um elevador residencial e convencional e acredita que pode existir espaço no seu imóvel, vamos entrar em um ponto importante.
Para comprar um elevador, além de preocupar com as medidas, você vai precisar ter cuidados importantes com:
- os tipos de elevadores,
- seus preços,
- Velocidade do equipamento, capacidade de carga,
- fornecedores,
- avaliar as diversas propostas que receberá.
Para você lidar com todos esses pontos, preparamos um vídeo exclusivo para te ajudar.

◊ Conheça a Assessoria Meu Elevador
Criamos esse vídeo falando detalhadamente passo a passo como fazer a compra de um elevador. Seguindo esses passos, você poderá fazer seu projeto com segurança e ainda economizar muito dinheiro.
Acredito que irá te ajudar bastante.
Tamanho das partes do elevador: cabina, caixa de corrida, poço, última altura e portas
Além das medidas de largura e profundidade, existem outras dimensões importantes na instalação de um elevador.
Vamos falar agora em mais detalhes sobre as medidas da cabina, da profundidade do poço, do pé direito da última altura e das medidas das portas do elevador.
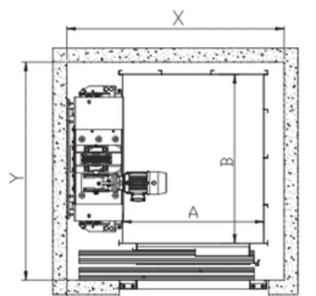
Quais as medidas da cabina e da caixa de corrida do elevador?
Quando falamos da dimensão de elevadores, ou do tamanho do elevador, podemos nos referir a cabina, que é o espaço interno onde estão os passageiros; ou então às dimensões da caixa de corrida, que é a estrutura civil que abriga o elevador.
Veja essa ilustração:

Enquanto A e B são as medidas de largura e profundidade da cabina do elevador. X e Y representam a largura e profundidade da caixa de corrida, respectivamente.
Nessa tabela, você vê medidas padrões de cabina e caixa de corrida, para diferentes tamanhos de elevador.
| Número de passageiros | Medida da cabina (AxB) m | Medida da caixa de corrida (XxY) m |
| 3 pessoas (PNE) | 0,90 x 1,20 | 1,50 x 1,50 |
| 5 pessoas | 0,90 x 1,30 | 1,50 x 1,60 |
| 6 pessoas | 1,00 x 1,25 | 1,60 x 1,60 |
| 7 pessoas | 1,00 x 1,30 | 1,60 x 1,70 |
| 8 pessoas | 1,10 x 1,40 | 1,80 x 1,80 |
| 10 pessoas | 1,30 x 1,40 | 2,00 x 2,00 |
| 12 pessoas | 1,40 x 1,50 | 2,10 x 2,20 |
Qual a altura de um elevador?
A altura livre da cabine de um elevador varia entre 2,10 m até 2,40 m.
Poço, última altura e portas do elevador

Qual altura deve ter o poço do elevador?
Para elevadores convencionais a altura do poço fica entre 1,0 até 1,50 m. Para elevadores residenciais as medidas irão variar entre 0,3 até 0,5 m. E para as plataformas a profundidade pode variar de 0,1 até 0,5 m.
A altura do poço é uma medida especificada por questões de segurança para o funcionamento do elevador. É o espaço onde são instalados componentes obrigatórios de amortecimento para caso o elevador ultrapasse o último pavimento inferior.
Por isso ela é escolhida de acordo com o tipo de equipamento a ser instalado. Quanto mais rápido o elevador, mais altura de poço é necessária.

O poço é uma continuação da caixa de corrida. Por isso, as medidas da largura e profundidade devem ser iguais às medidas da caixa de corrida.
Tamanho do pé direito da última parada
Outro ponto de atenção muito importante que você irá se deparar quando for instalar um elevador no seu projeto é o que se chama de última altura da caixa de corrida.

Acima do último pavimento superior, também existem distâncias de segurança a serem respeitadas. O pé direito do último pavimento na parte de dentro da caixa de corrida é maior do que os demais pavimentos.
Para elevadores convencionais as medidas podem variar desde 3,50 m até 4,10 m. Para elevadores residenciais as medidas variam entre 2,80 m e 3,50m e para as plataformas de acessibilidade a medida é de 2,40m. Lembre-se que essas são medidas feitas a partir do nível do piso do último pavimento superior.
Qual o tamanho das portas do elevador?
As portas dos pavimentos são outro ponto de atenção importante na hora de construir.
Qual o espaço reservar para a instalação dela no corredor? Qual o tamanho da porta a se utilizar? Utilizar porta de abertura central ou abertura lateral?
Hoje em dia, as portas automáticas são itens de segurança obrigatório para a maior parte dos elevadores. Portas manuais estão restritas somente a projetos unifamiliares.
O vão da porta deve ter no mínimo 0,80 m de largura por 2,00 m de altura (NM 207).
No mercado, as portas de pavimento são vendidas com vão normalmente de 80 cm, 90 cm ou 1,00 m.

Porta de pavimento com abertura central
Portas de abertura central abrem mais rapidamente do que uma porta de abertura lateral. Por isso, ela agiliza a entrada e saída de passageiros. Elas ocupam mais espaço, mas tendem a ser melhores para cabinas mais amplas e para edifícios comerciais.
Um ponto que você deve observar é que, do lado de dentro da caixa de corrida (foto abaixo), a porta ocupa um espaço bem maior do que o espaço que a porta ocupa no hall do elevador (foto de cima). É o espaço adicional necessário para a porta se movimentar.

Uma porta de abertura central que tenha o vão de 0,80 m por exemplo, exige 1,80 m de parede da caixa de corrida para ser instalada. Observe nessa foto o espaço lateral necessário para a porta se movimentar.
Porta de pavimento com abertura lateral
Como as portas com abertura lateral fazem um movimento de sobreposição para o mesmo lado. Elas podem ser instaladas utilizando menos espaço da parede da caixa de corrida.

Uma porta de abertura central que tenha o vão de 0,80 m exige 1,40 m de parede da caixa de corrida para ser instalada. Por isso é a solução mais empregada em edifícios residenciais e casas.
É obrigatório fechar a caixa de corrida?
A caixa de corrida é um espaço muito importante para a segurança do elevador. Nela, existem diversos componentes que se movimentam, e itens que fiscalizam a posição e segurança do elevador.

Por este motivo, na grande maioria dos elevadores é exigido que esse espaço seja isolado de qualquer contato externo, normalmente através de um fechamento de alvenaria, metal, vidro ou acrílico.
As únicas exceções que se fazem são para equipamentos bem lentos com percurso de até 2 metros de altura, e alguns equipamentos residenciais específicos de pequeno porte.
Quanto custa um elevador?
O preço dos elevadores tem uma variação muito grande, por isso vou te passar uma faixa de valores de acordo com o tipo de equipamento.
Para um elevador convencional, a faixa de preços pode variar de R$90 mil até R$200 mil para edifícios maiores e de R$80 mil a R$150 mil para construções de dois até cinco andares. Muitos fatores afetam o custo dos elevadores, incluindo a capacidade de pessoas, número de pisos que pode acessar, velocidade, o design e os recursos de segurança.
Já para um elevador residencial, costumam ficar entre R$ 50 mil a R$ 100 mil.
Nós temos um texto detalhando os preços do mercado e explicando como você pode conseguir os menores preços do mercado. Para saber mais clique aqui.
Os tipos de elevadores e suas diferentes medidas
Hoje no mercado de elevadores existem vários tipos de elevadores com medidas distintas.
Vamos ver as características dos elevadores hidráulicos, dos elevadores de tração com e sem casa de máquinas, do equipamento a vácuo e das plataformas.
Elevadores hidráulicos
Os elevadores hidráulicos são equipamentos comumente utilizados em residências e pequenos edifícios. Eles funcionam através de um pistão hidráulico que movimenta a cabina do elevador.
São equipamentos de baixa velocidade e alto nível de segurança.

Em termos de espaço, eles precisam de uma altura de poço pequena, menor do que os elevadores com máquina de tração. Além disso, o pé direito da última altura também é pequeno pois não é necessário nenhum maquinário na parte superior.
É importante notar que nesse tipo de elevador é necessária uma casa de máquinas externa à caixa de corrida, normalmente instalada perto do poço do elevador no primeiro pavimento, para acomodar a central hidráulica e o comando elétrico do equipamento.
Suas medidas são relativamente pequenas: de 1,00 x 0,70 x 1,50 (largura, profundidade e altura).
Elevadores de tração sem casa de máquinas
Os elevadores de tração sem casa de máquinas são equipamentos modernos muito utilizados. Eles funcionam através de uma máquina de tração instalada na própria caixa de corrida do elevador.
São equipamentos de alta velocidade e alto nível de conforto.

Nesses equipamento, o pé direito da última altura são maiores do que os elevadores hidráulicos, justamente para poder acomodar o maquinário. A altura do poço também tende a ser maior, por se tratar de equipamentos mais velozes.
Elevadores com casa de máquinas
Elevadores com casa de máquinas são equipamentos mais robustos e de fácil manutenção.
São pouco utilizados hoje em dia, justamente por precisarem de uma sala acessível acima da caixa de corrida do elevador, o que tende a dificultar os projetos arquitetônicos.
No entanto, as soluções com casa de máquinas foram muito utilizadas no passado e por isso são predominantes nos prédios já construídos.
O dimensionamento da casa de máquinas varia de prédio para prédio, de acordo com o equipamento a ser instalado, mas por norma a área da casa de máquinas sempre será maior que o dobro da área da caixa.
Elevadores a vácuo
O elevador a vácuo é um equipamento utilizado em residências e utiliza a diferença de pressão para se movimentar.
Possuem estética bem moderna e valorizam os ambientes.
O elevador a vácuo tem a dimensão de um diâmetro de 1,20 m, bem menor do que o espaço necessário para um elevador residencial, e isso possibilita que ele seja instalado em espaços reduzidos.
Plataformas de Acessibilidade
As plataformas são um tipo de equipamento bastante utilizado em residências e comércios quando o objetivo é a acessibilidade.
São equipamentos de simples instalação e manutenção, além de possuírem custo mais reduzido.
São equipamentos flexíveis em termos de tamanho e aceitam bastante customização.
Elas tem velocidade muito baixa, e podem ser utilizadas para um percurso de até 4 metros.
Ao contrário do que a maioria das pessoas pensam, as plataformas não são só aqueles equipamentos abertos industriais.
Elas podem ser também fechadas e cabinadas, se parecendo com um elevador normal, como na imagem abaixo.

Como reservar o espaço certo para o elevador no seu projeto
Com o que vimos até agora, dá para perceber que existe um grande número de possibilidades quando se avalia um elevador para instalar em um imóvel.
A escolha do elevador passa pela avaliação de diversos pontos.
Alguns desses pontos mudam significativamente o layout necessário para a instalação do equipamento. Por exemplo: o tipo de equipamento, sua capacidade e sua velocidade.
No fim das contas, o cenário ideal para a definição das dimensões do elevador no projeto é definir o elevador que será instalado, e com isso chegar na definição das medidas exatas.
A grande questão é que definir o elevador que será instalado não é algo trivial no meio de tantas opções.
Nós mesmos, que já selecionamos elevadores para mais de 200 projetos, às vezes nos deparamos com situações que requerem análises bem cuidadosas para encontrarmos a melhor solução.
Cada projeto possui muitas especificidades e com isso a solução ótima varia muito de projeto para projeto.
Apesar de não ser simples, essa é uma das maiores belezas na engenharia deste equipamento. A sua versatilidade e personalização.
Com mais de dez anos de experiência, hoje eu e o Rodrigo temos uma vasta noção das opções e dos cuidados ao selecionar cada equipamento.
E hoje colocamos essa experiência ao seu dispor para te ajudar individualmente a selecionar o melhor equipamento para o seu imóvel, através de um estudo cuidadoso do seu projeto, reuniões com você e coleta de orçamentos no mercado.
Se hoje você está diante da compra de um elevador, eu te convido a conhecer agora a Assessoria Meu Elevador.
◊ Clique e conheça a Assessoria Meu Elevador

Quais são os menores elevadores existentes no mercado?
Mencionamos que para um elevador residencial, o ideal é que você tenha um vão livre de 1,50 x 1,50m de largura e profundidade.
Com esse espaço você tem várias opções de fabricantes e poderá ter um elevador para 3 passageiros, ou 1 cadeirante e uma pessoa em pé.
No entanto, é possível que você não tenha todo esse espaço disponível.
Nesse caso, saiba que as empresas fabricam elevadores sob medida e que normalmente é possível reduzir um pouco as dimensões, especialmente em imóveis residenciais.
Essas dimensões chegam até 1,20 x 1,20 m. Nesse caso seria um elevador para 2 passageiros.
Isso só é possível para residências unifamiliares, já que outros tipos de imóvel seguem normas e leis específicas e que impossibilitam equipamentos que não permitam acesso para cadeirantes.
Outro ponto a se atentar é que nesse caso o número de empresas que conseguirão te atender será menor. Por isso é importante um estudo cuidadoso antes de definir medidas reduzidas dessa forma.
Elevadores pequenos em locais comerciais ou condomínios
Se você quer instalar o menor equipamento possível em um imóvel comercial ou em um condomínio residencial é importante ter em mente a obrigatoriedade de escolher um equipamento que atenda às leis de acessibilidade.
A ABNT NM 313 é a mais relevante na definição dos elevadores.
Uma de suas principais exigências é de que o espaço dentro da cabina seja adequado para o uso de cadeirantes.
Ela especifica que as dimensões internas da cabina devem ser de pelo menos 0,90 m x 1,40 m. Ou, em outro formato, de pelo menos 1,10 x 1,30 m.
Outras exigências de acessibilidade são a instalação de espelho na cabina, corrimão lateral e sinalização em braile nas botoeiras.
Em termos de área livre da caixa de corrida para instalação de um elevador, nesses casos é necessário que você tenha pelo menos 1,40 m x 1,50 m.
Empresas fabricantes de elevador
Um dos grandes segredos da compra de um elevador está na escolha do fabricante.
Muitas pessoas acreditam que existem poucas opções de fabricantes de elevador, sendo que na verdade é o contrário.
Hoje, fabricar um elevador é muito mais fácil, e isso possibilitou um grande número de empresas estarem atuando nesse ramo.
O que acontece é que as marcas de elevador não são tão conhecidas e é preciso uma pesquisa aprofundada para conhecer bem as suas opções.
A escolha do fornecedor pode influenciar diretamente no seu projeto, já que as empresas trabalham com tipos de equipamentos diferentes.
Além disso, é onde existe mais risco na compra.
Escolher um fornecedor de confiabilidade duvidosa pode fazer o sonho de ter um elevador se tornar verdadeiro um pesadelo.
Não raramente, conhecemos pessoas que compraram um elevador e não receberam, mesmo já tendo pago o valor integral, o que é muito triste.
Apesar dos maus fornecedores, posso atestar que existem empresas muito boas e competentes no mercado, e profissionais muito experientes fazendo bom trabalho.
Você pode receber orçamento das multinacionais Atlas, TKE e Otis, muito conhecidas e presentes nos edifícios comerciais e residenciais de grande porte, mas saiba que existe uma grande quantidade de pequenas e médias empresas com propostas muito competitivas.
Ainda mais quando se trata de residências e pequenos edifícios.
Depois de definir o tipo de elevador ideal para o seu projeto, encontrar uma boa empresa é a segunda decisão mais importante que você irá fazer.
Principais dicas para comprar um elevador
Eu não sei você, mas a primeira vez que tive contato com a engenharia e arquitetura por trás da instalação de um elevador foi algo muito surpreendente para mim.
As primeiras vezes que eu acompanhei obras em que eram instalados elevadores, eu fiquei surpreso com a praticidade e com a tecnologia que se utiliza para montar estes equipamentos dentro das construções.
Do meu ponto de vista, as possibilidades criadas pelos elevadores nos projetos são de fato apaixonantes. Este equipamento é a espinha dorsal das construções modernas.
Com tantos pontos importantes é difícil selecionar a principal dica na hora de comprar o elevador. Mas acredito que o grande segredo está na paciência para fazer uma pesquisa extensa sobre o assunto.
Não existe uma loja para ver todos os tipos de elevador e selecionar um. E por isso você busca informações através da internet, indicações de conhecidos e consulta com vendedores.
Após algumas semanas buscando, você vai perceber que a quantidade de informações e opções é grande e por isso pode até querer desistir ou tomar uma decisão precipitada.
Então minha dica é ter um pouco de paciência nesse momento.
Sugiro que você organize as informações e pesquise bastante até chegar a uma boa solução para o seu projeto.
E lembre-se, você não precisa fazer tudo isso sozinho. Se você quer ter dois engenheiros especialistas em elevadores para te guiar na sua escolha, conte comigo e com o Eng. Rodrigo. Clique aqui e veja como podemos te ajudar.

E se quiser continuar sua pesquisa por conta própria, mas de uma forma eficiente e inteligente, eu sugiro que você assista esse vídeo agora, que é muito esclarecedor.
É isso! Desejamos sucesso na sua compra.
Um forte abraço,
Eng. Rômulo e Eng. Rodrigo

Olá, gostei muito das explicações, tenho um sobrado no Rio Grande do Norte, e estou estudando a possibilidade de colocarmos um, pois somos idosos e minha esposa está com problemas sérios nos joelhos e está ficando inviável continuar morando nele. Mas temos um grande carinho por esta residência que construímos a cerca de cinco anos. Grato pelas informações muito objetivas.
Sds.
Nilton